Volný

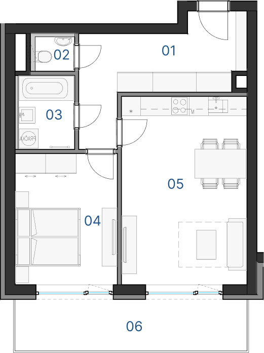
Byt 3-H

2+KK/56,53m2

3-H
Ozn. Místnosti Plocha
01 Chodba 12,65 m2
02 WC 1,32 m2
03 Koupelna 4,02 m2
04 Ložnice 12,94 m2
05 Obývací pokoj + Kuchyň 22,81 m2
Plocha příček 2,79 m2
Podlahová plocha 56,53 m2
06 Balkón 12,24 m2
Cena na vyžádání

3. Patro

Vyberte patro...

Máte zájem o více informací?
Neváhejte se nám ozvat!

Nikola Adamcová
Obchodní zastoupení
(Po-Pá 8:00-16:00)