Volný

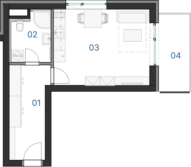
Byt 3-A

1+KK/34,65m2

3-A
Ozn. Místnosti Plocha
01 Chodba 9,33 m2
02 Koupelna + WC 4,87 m2
03 Obývací pokoj + Kuchyň 19,21 m2
Plocha příček 1,24 m2
Podlahová plocha 34,65 m2
04 Balkón 6,69 m2
Cena na vyžádání

3. Patro

Vyberte patro...

Máte zájem o více informací?
Neváhejte se nám ozvat!

Nikola Adamcová
Obchodní zastoupení
(Po-Pá 8:00-16:00)